english

YAJ arkitekter - Ylva Lindstedt & Jonas Nyberg arkitekter - förstasidan
om YAJ arkitekter
kontakta YAJ arkitekter
Think tank
YAJ i media
 
turism + varumärkesbyggande arkitektur

bostadsrätter i åre
resort-boende i åre
ksss klubbhus
kontor för sos international
destination åsnen
restaurang riva i strängnäs
hotell i Oxelösund
boende på västkusten
oxelösunds gästhamn etapp 2
oxelösunds gästhamn etapp 1

depå för jernhusen
gotland arena
kontor för plan sverige
seglarhotellet i sandhamn
gästhamn i bohuslän
gästhamn på ostkusten
flerbostadshus i västervik
destination järvsö
mariefreds gästhamn

ekerö marina

Volvo ocean race
mörby centrum
casa cor
oxelösund yacht- och båthall
kalmar konstmuseum
ålands sjöfartmuseum
sametinget i kiruna
fler projekt

villor + vindar
boende stadsplaner




 

 

 

oxelösunds gästhamn


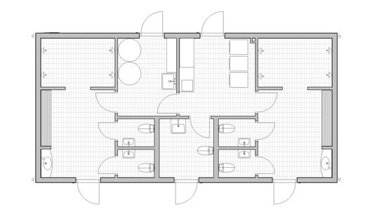
oxelösunds gästhamn, etapp 1, 2009-2010
- servicebyggnad

Byggnaden för gästhamnsfaciliteter i Oxelösund är en monolit i massivträ som nås via en strandpromenad i trä. Byggnadens form är genererad utifrån optimala solvinklar och väderstreck för dels solpanelens funktion, dels för takfönstrens funktion som dagsljusintag.

oxelösunds gästhamn

oxelösunds gästhamn

oxelösunds gästhamn

oxelösunds gästhamn

dusch omklädning spa i oxelösunds gästhamn

sittbänk

krokar

oxelösunds gästhamn

oxelösunds gästhamn

oxelösunds gästhamn

oxelösunds gästhamn

oxelösunds gästhamn

oxelösunds gästhamn

oxelösunds gästhamn

oxelösunds gästhamn

oxelösunds gästhamn

oxelösunds gästhamn, etapp 1, 2009-2010
- servicebyggnad

Byggnaden för gästhamnsfaciliteter i Oxelösund är en monolit i massivträ som nås via en strandpromenad i trä. Byggnadens form är genererad utifrån optimala solvinklar och väderstreck för dels solpanelens funktion, dels för takfönstrens funktion som dagsljusintag

modern form med maritim förankring

Massivträstommen är exponerad exteriört i fasaderna, takbeläggningen är också i trä, ett sk faltak. Hela exteriören är ytbehandlad med väldoftande ”bryggsmörja” eller ”Roslagsmahogny” – en mörkpigmenterad, traditionstyngd blandning av tjära med linolja. Interiörerna är havsblått monokroma med detaljer i teak.

grön våg

Vi har en grön baktanke med alla våra projekt. Anläggningen innehåller miljöteknik i form av solpaneler och värmepump för tappvarmvatten, rörelsedetektorer och sensorer för reglering av belysning, tappvatten och vädring via takfönster. Energisnål belysning och apparatur används.

Förutom att integrera cleantech-system i byggnader, har vi som arkitekter möjlighet att åstadkomma verkliga besparingar vad gäller både miljö och förvaltningskostnader med hjälp av sk passiva klimatsystem via våra byggnaders form, väderstrecksorientering och läge i landskapet/stadslandskapet. Exempel på passiva klimatsystem i gästhamnsbyggnaden i Oxelösund är utjämning av temperatursvängningar under dygnet via en stomme i massivträ - den tunga stommen ackumulerar värme under dagen, värmen återges under kalla nätter. Ett annat exempel är dagsljusintag via takfönster placerade där den mest intensivt uppvärmande solinstrålningen från söder undviks. Ett tredje exempel är evakuering av fukt och överskottsvärme via självdrag genom takfönstren.

Ytterligare en miljöaspekt av anläggningen är genomgående miljöriktiga byggmaterial. Gästhamnsanläggningen är dessutom i sin helhet Blå Flagg-klassad, och den driftas i samarbete med Håll Sverige Rent.

destinationsutveckling genom arkitektur
Idag är en gästhamn mycket mer än nödvändig basservice för båtfolk. Modern gästhamnsverksamhet går ut på att göra båtlivet mer angenämt och skärgården mer lättillgänglig för fler under en större del av året. I samarbete med Promarina utformar vi anläggningar som förlänger båtsäsongen, erbjuder rekreativa upplevelser även i dåligt väder, och som också har attraktionskraft off season. Vi utformar anläggningarna så att de både länkar båtgäster med ortens attraktioner och erbjuder allmänheten från land en upplevelserik länk till vattnet – ett sätt att boosta hela orten som turistdestination!

Utöver den nya byggnaden för gästhamnsfaciliteter i Oxelösund har nya bryggor kommit på plats. Inför säsongen 2011 får gästhamnen ytterligare ett tillskott i form av nytt hamnkontor med butik, café och en gästhamnslounge.

miljöteknik och klimatanpassad arkitektur - aktiva system
- Solpaneler och värmepump för uppvärmning av tappvatten.
- Rörelsedetektorer och sensorer för reglering av elektrisk belysning, tappvatten och vädring via takfönster.
- Återvinning av värme i frånluft och avloppsvatten.

miljöteknik och klimatanpassad arkitektur - passiva system
- Utjämning av temperatursvängningar under dygnet via stomme i massivträ. Den tunga stommen ackumulerar värme under dagen. Värmen återges under kalla nätter.
- Dagsljusintag via takfönster i väderstreck, där den mest intensivt uppvärmande solinstrålningen från söder undviks.
- Evakuering av fukt och överskottsvärme via självdrag genom takfönster.

Hamnkontor för Oxelösunds gästhamn

Oxelösunds Gästhamn är publicerad i

Tidskriften RUM, nr 1-2011,   Havet i centrum i Oxelösund
Oxelösunds gästhamn. Text: Katarina Gold.

ArchDaily , 2010-10-30, ”Oxelösund Marina / YAJ Arkitekter ”
Läs artikeln>

Archello, 2010-11-03, ” Oxelösund Marina / Oxelösund, Sweden ”
Läs artiklen>

Båtliv, 2010-04-22, ”Destinationsutveckling i skärgården”  
Läs artikeln >

Tidningen Fastighetsaktien, 2010-04-24, ”YAJ utvecklar skärgården”
Läs artikeln >