english

YAJ arkitekter - Ylva Lindstedt & Jonas Nyberg arkitekter - förstasidan
om YAJ arkitekter
kontakta YAJ arkitekter
Think tank
YAJ i media
 
turism + varumärkesbyggande arkitektur
villor + vindar
vindar på södermalm
villa criss cross

villa kapla
villa marensborg
villa i kuala lumpur
villa n13
villa s13
villa p14
villa k16
villa s41
fritidsboende i åre
villa i täby
fritidshus på aspö
villa i danderyd
fritidshus i båstad
kök i näsby park
villa i gifu, japan
råvindar i enskede
fler projekt
boende stadsplaner




 

 

 

villa criss cross, värmdö, 2011-2013

Villa Criss Cross är en ny 3-våningsvilla i souterräng i platsgjuten betong och glas på Värmdö. Huset ligger högst upp vid en bergsplatå omgiven av skog och naturtomter med utsikt över skärgården. Från platån sluttar terrängen brant mot vattnet i söder. Läs mer nedan.











villa criss cross, värmdö, 2011-2013

Villa Criss Cross är en ny 3-våningsvilla i souterräng i platsgjuten betong och glas på Värmdö. Huset ligger högst upp vid en bergsplatå omgiven av skog och naturtomter med utsikt över skärgården. Från platån sluttar terrängen brant mot vattnet i söder.

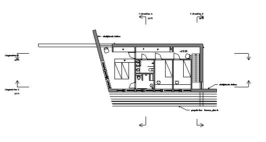
Huvudbyggnaden består av tre horisontella, våningshöga, rumsbildande band i betong. Betongbanden korsar varandra i plan och formar ett antal kryss – därav villans namn. Betongbandens funktion är att bilda rum, interiört och exteriört, som på olika sätt öppnar respektive sluter sig mot omgivningen:

På plan 1 vänder betongbanden rummen mot entréplatsen utanför. På plan 2 öppnar banden rummen mot havsutsikten och mot solen i söder och väster. Banden sluter också byggnaden för insyn från vägen och de två grannfastigheterna. Plan 3 är familjens privata sfär, som omsluts av betongband runt om med undantag för öppningar för ljusinsläpp och den vidsträckta utsikten via fullvuxna tallars grenverk.

Bostadens offentliga rum, dvs entrérummet på plan 1 och vardagsrum/matsal/kök på plan 2 sträcks ut i terrängen dels med hjälp av betongbanden, dels med hjälp av kontinuitet i material: Invändiga tak är i ek. Pergolor, också i ek, täcker delar av de utvändiga rummen närmast husets fasader. Stenbeläggning i entrén fortsätter i dess motsvarande utvändiga rum, på samma sätt som trägolvet på plan 2 också täcker de utvändiga golven i våningsplanets förlängning mot söder och väster.

Villa Criss Cross är ett passivhus med ytterväggar i betong med en isolerande kärna. Solpaneler på taket värmer tappvarmvattnet. Byggnaden värms av bergvärme, och ventileras med förstärkt självdragsventilationvia sensorstyrda takfönster i kombination med mekanisk frånluft. Huset släpper också in den uppvärmda solinstrålningen genom stora glaspartier i söder - mot norr är byggnaden huvudsakligen sluten. Betongbjälklagen, den tunga murstocken och den norra betongytterväggen magasiinerar dagens solvärme, som sedan återges under den kallare natten. Naturmaterial dominerar: Trä, natursten, stål och betong.


arkitekter
Ylva Lindstedt och Jonas Nyberg
beställare privat
plats Värmdö
skede gestaltningsförslag och bygglovshandling

år
2011-2013
area 225 kvm
fotograf Anne Nyblaeus




villa criss cross är publicerad i

Dagens Industri Weekend, 2014-04-11, ”Bygge gav mersmak”
Axel Mörner (text), Anne Nyblaeus (foto), Anette Mörner (styling)
Se reportaget som pdf (8,5 Mb)

Dagens Industri Weekend, 2014-04-13, ”Drömhuset blev startskott för nya karriären”
Axel Mörner (text), Anne Nyblaeus (foto), Anette Mörner (styling)
Läs artiklen>