english

YAJ arkitekter - Ylva Lindstedt & Jonas Nyberg arkitekter - förstasidan
om YAJ arkitekter
kontakta YAJ arkitekter
Think tank
YAJ i media
 
turism + varumärkesbyggande arkitektur
villor + vindar
vindar på södermalm
villa criss cross

villa kapla
villa marensborg
villa i kuala lumpur
villa n13
villa s13
villa p14
villa k16
villa s41
fritidsboende i åre
villa i täby
fritidshus på aspö
villa i danderyd
fritidshus i båstad
kök i näsby park
villa i gifu, japan
råvindar i enskede
fler projekt
boende stadsplaner




 

 

 

fasad söder

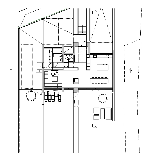
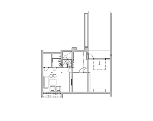
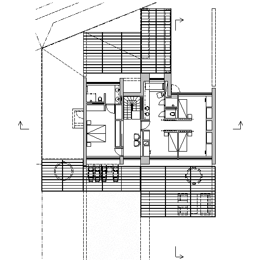
villa N13, STOCKSUND, 2013-pågående

Villa N13 är en ny 3-våningsvilla med pent-house och takterrass i Stocksund. Huset är komponerat av ett antal vertikala, parallella, bärande skivor, som skjuter ut ur byggnadsvolymen. Huset ligger på en södersluttande skafttomt omgiven av skog och naturtomter. Vardagsrum och kök öppnar sig mot södervända terrasser och en pool. Pergola-täckta terrasser bildar mellanzoner mellan invändiga rum och den omgivande vilda naturen.

vy entréfasad

vy uteplats

vy från matsal mot vardagsrum

vy entré

vy kök

källarplan

entréplan

plan övervåning

plan penthouse

arkitekter Ylva Lindstedt och Jonas Nyberg
beställare privat
plats Stocksund
skede gestaltningsförslag, bygglovshandling och förfrågningsunderlag
år
2013-pågående
area (BTA) 368,5 kvm