|

villa marensborg, saltsjöbaden, 2010
Det övergripande syftet med ombyggnaden av 70-talsvillan Marensborg i Saltsjöbaden var att optimera bostaden i förhållande till utsikt och dagsljusflöde, att förbättra kopplingarna mellan ute och inne, och mellan våningsplanen, samt att modernisera byggnaden med avseende på energi och det arkitektoniska uttrycket. Läs mer nedan.









villa marensborg, saltsjöbaden, 2010
Det övergripande syftet med ombyggnaden av 70-talsvillan Marensborg i Saltsjöbaden var att optimera bostaden i förhållande till utsikt och dagsljusflöde, att förbättra kopplingarna mellan ute och inne, och mellan våningsplanen, samt att modernisera byggnaden med avseende på energi och det arkitektoniska uttrycket.
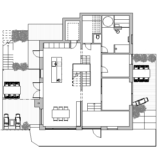
Huset har kompletterats med takterrass samt terrasser mot öster och väster för att ytterligare tillvarata havsutsikt samt morgon- och kvällssol. Befintliga räckesfronter och fasadpaneler har ersatts med oregelbundet perforerade plåtfronter i guldeloxerad aluminium. Tegelfasaden har säckskurats så att det bakomliggande fasadteglets textur framträder genom putsen. Ett längsgående växthus har lagts till den västra fasaden utanför köket. Ett spa med anslutande gym har tillkommit.
Den tidigare slutna planlösningen har öppnats upp med hjälp av ett centralt trapphus, som ökar den visuella kontakten mellan rummen och mellan våningsplanen. Trappan avslutas med en lanterninbyggnad på taket, som släpper ner dagsljus till de invändiga rummen.
Rymd är för oss en kvalitet i sig. Vi strävar därför efter att tänja upplevelsen av rum – som här med hjälp av kontinuerliga rum som kan slutas i olika grad beroende på behov av privathet, och glidande övergångar mellan ute och inne, som också möjliggör att bostaden växer och krymper med årstiderna.
|