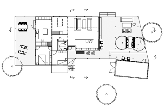
Om- och tillbyggnad av befintlig enplansvilla på Ekerö. Tillbyggnaden omfattar ny entré och vardagsrum med flytande övergångar till utvändiga rum på nya terrasser.
arkitekter Ylva Lindstedt och Charlotte Fredriksson beställare privat plats Ekerö skede gestaltningsförslag och bygglovshandling år 2013-pågående area 118 kvm