english

YAJ arkitekter - Ylva Lindstedt & Jonas Nyberg arkitekter - förstasidan
om YAJ arkitekter
kontakta YAJ arkitekter
Think tank
YAJ i media
 
turism + varumärkesbyggande arkitektur

bostadsrätter i åre
resort-boende i åre
ksss klubbhus
kontor för sos international
destination åsnen
restaurang riva i strängnäs
hotell i Oxelösund
boende på västkusten
oxelösunds gästhamn etapp 2
oxelösunds gästhamn etapp 1

depå för jernhusen
gotland arena
kontor för plan sverige
seglarhotellet i sandhamn
gästhamn i bohuslän
gästhamn på ostkusten
flerbostadshus i västervik
destination järvsö
mariefreds gästhamn

ekerö marina

Volvo ocean race
mörby centrum
casa cor
oxelösund yacht- och båthall
kalmar konstmuseum
ålands sjöfartmuseum
sametinget i kiruna
fler projekt

villor + vindar
boende stadsplaner




 

 

 

vy restaurang

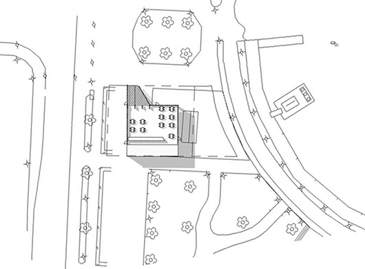
restaurang riva, strängnäs hamn, 2011-pågående

YAJ arkitekter projekterar en ny byggnad till restaurangen Riva i Strängnäs hamn. Läs mer nedan.

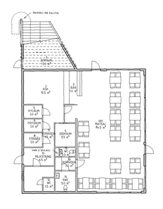
plan takterrassplan

 

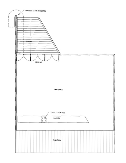
vy trappa

vy takterrass

restaurang riva, strängnäs hamn, 2011-pågående

YAJ arkitekter projekterar en ny byggnad till restaurangen Riva i Strängnäs hamn.

Restaurangen är en vitmålad träbyggnad, som öppnar sig med glaspartier mot kajstråket, gästhamnen och uteserveringen på Västervikstorget. En bred, sittbar trappa leder upp till restaurangens takterrass med bar och lounge-möblemang. En turkosblå glasfront kantar trappa och terrass.

arkitekter Ylva Lindstedt och Jonas Nyberg
beställare Viamare Promarina Management 
plats Strängnäs
skede 
entreprenadupphandling
år
 2011-pågående
area 200 kvm
energikonsult Incoord 
storkökskonsult Storköksbyrån

 

situationsplan